
Приезжайте к нам на завод:
● Звоните, мы на связи

Приезжайте к нам на завод:
График работы:
с 9 до 20 ежедневно
pimforest@yandex.ru
Описание:
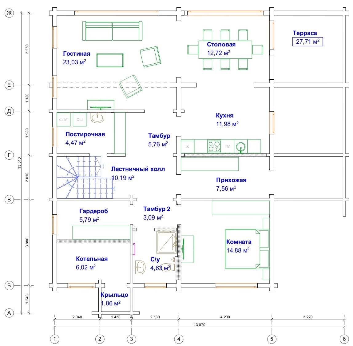
Жилая площадь 205 м2
1 этаж 108,9 м2
2 этаж 96,4 м2
Терраса 25,7 м2
Крыльцо 1,8 м2
2 этажа, 5 спален, большая гостиная, большая кухонная зона, переходящая в столовую, постирочная, 3 саун. узла, котельная, терраса
Комплектация:
Фундамент УШП, с коммуникациями 1 этажа
Стены из клееного бруса 200 мм - наружные, 120 мм
- внутренние. Кровля мягкая Шинглас с утеплением 200 мм
Окна и двери
Комплект стен:
4.74 млн. рублей
Планировка дома
Фундамент
Стены
Крыша
Окна
Мы закладываем в смету УШП со всеми коммуникациями. Утепленная шведская плита — это утепленная монолитная фундаментная плита с сетью коммуникаций включая систему подогрева пола. Конечно, можно сделать свайный или свайно-ростверковый фундамент, на этом этапе это будет дешевле значительно. Но вам все равно делать внутри дома полы их нужно утеплять, используя утеплитель и пленки, затем прокладывать отдельно ХГВС, трубы радиаторов, канализцию и др. Затем делать черновой пол и если нужны теплые полы, то заливать стяжку. В итоге у вас получиться примерно тот же эффект, но дольше по времени и в те же деньги или дороже.
Для устройства подушки фундамента применятся песок и щебень фракции 5-20 мм. Высота подушки 200 мм, в зависимости от уклона участка и глубины плодородного слоя. Между слоями укладывается геотекстиль 150 - 300 г/м2
В качестве теплоизоляционного материала используется экструзионный пенополистирол марки ТЕХНОНИКОЛЬ CARBON ECO SP, который обладает низким водопоглощением и высокой прочностью на сжатие. Толщина 200 мм.
Для разводки коммуникаций ( ХГВС, теплых полов, подводок к радиаторам ) мы используем трубы из сшитого полиэтилена PEX-a с кислородным слоем компании STOUT.
Бетон марки B25 заказываем по месту на ближайшем бетонном заводе, т.к. подача бетона ограничена радиусом 50 км. до строящегося объекта. Перед заказом бетона, мы проверяем бетонный завод и берем на себя ответственность за качество бетона.
Арматура 12 мм и 6 мм, вязка арматуры согласно технологии.
Сваи винтовые 108 мм, с толщиной стенки 4 мм, оголовком с порошковой покраской. Работа по монтажу свай.
Стены. В смете внешние стены из клееного бруса 185(H)х200 мм. Мы считаем не целесообразно строить дом с внешними стенами меньшего сечения в центральном и северном регионах. Это оправдано с точки зрения затрат на отопление. Внтуренние стены также из клееного бруса и включены в стоимость теплого контура.
Проект КД (конструкции деревянные).
Стены из клееного бруса готовые к сборке. Запилены необходимые отверстия, пазы в оконных и дверных проемах. Сечения бруса 186 (h) ширина на выбор 120, 160, 200, 240 мм. Мы используем финский профиль с двумя тепловыми замками. Межвенцовый утеплитель Аватерм — этот материал не слеживается и не впитывает влагу.
Сборка стен без учета использования техники для поднятия бруса на верхние этажи, если это необходимо.
Стоимость доставки стенового комплекта до Москвы.
Работа крана или манипулятора в зависимости от подъезда к участку (стоимость уточняется по месту, в зависимости от региона стоимость часа работы разная).
Весь пиломатериал применяемый в крыше сухой строганый, антисептированный с нашего производства. Стропила 200х50 мм., контробрешетка брусок 45х45 мм., обрешетка доска 18*90 мм 2 сорт.
Металлочерепица Grand Line с премиум покрытием Atlas. Толщина стали 0,5 мм с защитно-металлическим покрытием Galfan ( ZA 255 гр/кв.м.), толщина полимерного покрытия 25 мкм. Гарантия на внешний вид 15 лет.
Утеплитель Технониколь Роклайт 200 мм. Мы всегда рекомендуем увеличивать толщину утепления до 300 мм. Это оправдано с точки зрения затрат на отопление.
Для подшивки свесов, террас и крыльца используется доска 18*90 мм. Сухая строганая 1 сорт. Потребуется покраска подшивы, краска и работа по покраске считается отдельно.
Водосточка серии Deke Lux.
Установка стропильной системы, контробрешетки и обрешетки. Утепление 200 мм, монтаж пароизоляции и супердиффузионной мембраны. Монтаж кровельного покрытия, подшива свесов и установка водосточки. Подшива террасы и крыльца считается отдельно.
В смете указана примерная стоимость окон и дверей, вы можете выбрать любой профиль. От толщины профиля, количества камер, фурнитуры стоимость окна может сильно отличаться.
Мы применяем обсаду нашего производства. Это клееная доска толщиной 60 мм. С выбранной четвертью под ширину профиля окна. Обсада является откосом окна, требует только покраски.
В стоимость входит монтаж обсады с подготовкой проема, установка окна или двери, отделка снаружи и внутри. Изготовление наличников, установка подоконников, без учета покраски.
Планировка дома
Фундамент
Стены
Крыша
Окна
Мы закладываем в смету УШП со всеми коммуникациями. Утепленная шведская плита — это утепленная монолитная фундаментная плита с сетью коммуникаций включая систему подогрева пола. Конечно, можно сделать свайный или свайно-ростверковый фундамент, на этом этапе это будет дешевле значительно. Но вам все равно делать внутри дома полы их нужно утеплять, используя утеплитель и пленки, затем прокладывать отдельно ХГВС, трубы радиаторов, канализцию и др. Затем делать черновой пол и если нужны теплые полы, то заливать стяжку. В итоге у вас получиться примерно тот же эффект, но дольше по времени и в те же деньги или дороже.
Для устройства подушки фундамента применятся песок и щебень фракции 5-20 мм. Высота подушки 200 мм, в зависимости от уклона участка и глубины плодородного слоя. Между слоями укладывается геотекстиль 150 - 300 г/м2
В качестве теплоизоляционного материала используется экструзионный пенополистирол марки ТЕХНОНИКОЛЬ CARBON ECO SP, который обладает низким водопоглощением и высокой прочностью на сжатие. Толщина 200 мм.
Для разводки коммуникаций ( ХГВС, теплых полов, подводок к радиаторам ) мы используем трубы из сшитого полиэтилена PEX-a с кислородным слоем компании STOUT.
Бетон марки B25 заказываем по месту на ближайшем бетонном заводе, т.к. подача бетона ограничена радиусом 50 км. до строящегося объекта. Перед заказом бетона, мы проверяем бетонный завод и берем на себя ответственность за качество бетона.
Арматура 12 мм и 6 мм, вязка арматуры согласно технологии.
Сваи винтовые 108 мм, с толщиной стенки 4 мм, оголовком с порошковой покраской. Работа по монтажу свай.
Стены. В смете внешние стены минимум из клееного бруса 185(H)х200 мм. Мы считаем не целесообразно строить дом с внешними стенами меньшего сечения в центральном и северном регионах. Это оправдано с точки зрения затрат на отопление. Внтуренние стены также из клееного бруса и включены в стоимость теплого контура.
Проект КД (конструкции деревянные).
Стены из клееного бруса готовые к сборке. Запилены необходимые отверстия, пазы в оконных и дверных проемах. Сечения бруса 186 (h) ширина на выбор 120, 160, 200, 240 мм. Мы используем финский профиль с двумя тепловыми замками. Межвенцовый утеплитель Аватерм — этот материал не слеживается и не впитывает влагу.
Сборка стен без учета использования техники для поднятия бруса на верхние этажи, если это необходимо.
Стоимость доставки стенового комплекта до Москвы.
Работа крана или манипулятора в зависимости от подъезда к участку (стоимость уточняется по месту, в зависимости от региона стоимость часа работы разная).
Весь пиломатериал применяемый в крыше сухой строганый, антисептированный с нашего производства. Стропила 200х50 мм., контробрешетка брусок 45х45 мм., обрешетка доска 18*90 мм 2 сорт.
Металлочерепица Grand Line с премиум покрытием Atlas. Толщина стали 0,5 мм с защитно-металлическим покрытием Galfan ( ZA 255 гр/кв.м.), толщина полимерного покрытия 25 мкм. Гарантия на внешний вид 15 лет.
Утеплитель Технониколь Роклайт 200 мм. Мы всегда рекомендуем увеличивать толщину утепления до 300 мм. Это оправдано с точки зрения затрат на отопление.
Для подшивки свесов, террас и крыльца используется доска 18*90 мм. Сухая строганая 1 сорт. Потребуется покраска подшивы, краска и работа по покраске считается отдельно.
Водосточка серии Deke Lux.
Установка стропильной системы, контробрешетки и обрешетки. Утепление 200 мм, монтаж пароизоляции и супердиффузионной мембраны. Монтаж кровельного покрытия, подшива свесов и установка водосточки. Подшива террасы и крыльца считается отдельно.
В смете указана примерная стоимость окон и дверей, вы можете выбрать любой профиль. От толщины профиля, количества камер, фурнитуры стоимость окна может сильно отличаться.
Мы применяем обсаду нашего производства. Это клееная доска толщиной 60 мм. С выбранной четвертью под ширину профиля окна. Обсада является откосом окна, требует только покраски.
В стоимость входит монтаж обсады с подготовкой проема, установка окна или двери, отделка снаружи и внутри. Изготовление наличников, установка подоконников, без учета покраски.
Время работы: Пн-Пт 9:00-20:00, Сб-Вс - по договоренности
ОГРН: 1024701532900

- Москва
- Санкт-Петербург
Постройка домов из клееного бруса по Москве и МО
Нужна срочная консультация? Оставьте свой номер телефона и мы Вам перезвоним!
Copyright 2026 © Копирование информации запрещено законом